Portfolio

    Mercadillo de las Luces

    Mercadillo de las Luces

    MEMORIA DESCRIPTIVA:

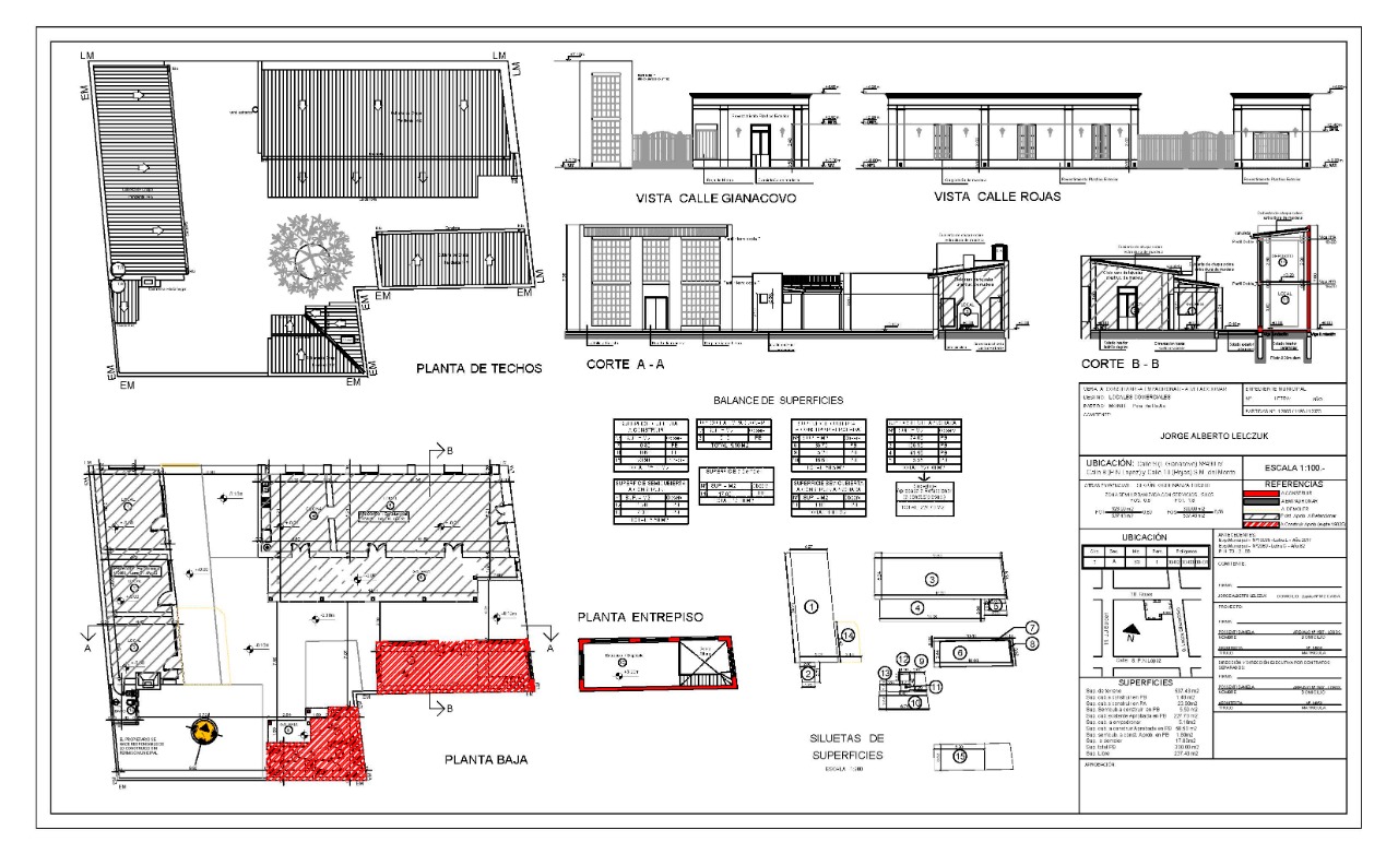
    La intervención consistió en la restauración, ampliación y refuncionalización de un conjunto constituido por dos volúmenes principales, edificados en un terreno céntrico cercano a la plaza principal de la localidad.

    El volumen emplazado sobre la esquina, tiene sus fachadas convergentes en ángulo recto, lo que denota su antigüedad y representa un dato disparador de la propuesta general de intervención.
    El restante, de ejecución posterior, se desarrolla sobre una de las medianeras del inmueble y se vinculaba por un garaje y un pasillo con el anterior.

    Al momento de la intervención, las construcciones se encontraban ruinosas y en estado de precariedad y abandono, por lo que fue necesario ejecutar limpieza, desmalezamiento y demoliciones parciales de locales agregados, que no guardaban relación con las características de las edificaciones principales.
    La propuesta arquitectónica consistió en diseñar un paseo comercial peatonal a cielo abierto accesible desde ambas calles, que circunda la casa patrimonial de la esquina en su cara interna, valorizando su ubicación de privilegio en el conjunto e integrándola con el resto de las construcciones.
    El mismo se completa con la disposición de locales comerciales en el volumen de una medianera y la construcción de un nuevo volumen sobre la restante, con lenguajes diferentes a la construcción de la esquina, pero armónicos e integrados en términos de conjunto.

    El pasaje-patio resultante reviste gran calidad para el tránsito y la estancia al aire libre, sirviendo de expansión a las actividades gastronómicas y soporte a distintas expresiones artísticas, viéndose reforzado por la ejecución de una galería semicubierta y la conservación un antiguo árbol de olivo como rasgo distintivo.

    La materialización constructiva incluyo acciones como la restauración de la cubierta de tejuelas y la demolición de revoques interiores, que dejan a la vista los ladrillos originales y permiten visualizar el tamaño de los mismos y el gran espesor de los muros de 60 cm.

    Se recuperaron a su vez las fachadas exteriores, reconstruyendo frisos, pilastras y molduras, y conservando y restaurando las aberturas originales de madera, con sus postigos interiores y rejas.

    Por último, el camino peatonal interno fue materializado con adoquines, ladrillos de demolición, durmientes de ferrocarril, chapas usadas, faroles de diseño colonial, rejas de hierro forjado en los accesos, bancos de madera y toldos de lona, con el imponente árbol de olivo como bisagra del recorrido.

    Autora de la intervención

    Arq. Daniela Possenti

    Ubicación:

    Laura Giagnacovo y Pedro N. Rojas - San Miguel del Monte

    Antigüedad:

    Siglo XIX - Restauración 2020

    Uso original:

    Vivienda unifamiliar

    Uso actual:

    Comercial gastronómico y cultural

    Propietario:

    Jorge Alberto Lelczuk

    Estado de conservación:

    Bueno (restaurado)

    Protección patrimonial:

    Bien de Valor Patrimonial, según la ordenanza 4.362/20 y el decreto 2.291/21

    Datos Catastrales:

    Circunscripción: 1 Sección: A Manzana: 63 Parcela: 1


    Ingresá un comentario

    ¿Alguna duda?