GANADORES CONCURSO NUEVA SEDE DEL COLEGIO DE AGRIMENSORES DISTRITO V
El jueves 6/7, se conocieron los trabajos premiados en el Concurso Provincial promovido por el Colegio de Agrimensores DV, que tuvo por objetivo obtener un anteproyecto para su nueva sede, caracterizado por una escala acotada para albergar las actividades administrativas actuales y un crecimiento, sumado a un SUM / Auditorio y espacios de encuentro.
El orden establecido por el Jurado, fue el siguiente:
1º PREMIO (Carpeta 0038)
Autora/es: Arqs. MARCELA ORCAJE (Mat. 18017) /GONZALO PEREZ (Mat. 18016)
Asociado: Sr. FERNANDO URQUIOLA
Equipo: Arq. FLORENCIA SANTILLAN
Asesor Estructural: Ing. GUSTAVO DELLEDONE
2º PREMIO: (Carpeta 0010)
Autora/es: Arqs. VALENTIN AYALA (Mat. 29995) / LUCIANO ARIEL DEL VALLE (Mat. 31670) /RODRIGO BALLINA BENITES (Mat. 31669) / AGUSTINA RONCONI (Mat. 32928)
3º PREMIO: (Carpeta 0089)
Autores: Arqs. LEANDRO SBARRA (Mat. 22.341) / JAQUELINA FERLAN (Mat. 12.530) / MAURO SBARRA (Mat. 20.340)
Equipo de proyecto: AUGUSTO CORONEL
Colaboradores: FRANCO ALÍ / JULIAN CIANCIO
Menciones sin orden de mérito
MENCIÓN (Carpeta 0031)
Autor: Arq. LEONARDO BOCCARDO (Mat.16743)
Colaboradores: Sres. FACUNDO CARRASCO / JOAQUIN COLL / JUAN CHAAR
MENCIÓN (Carpeta 0022)
Autores: Arqs. GABRIEL OSCAR DE LEON (Mat. 14820) / CARLOS ALEJANDRO JONES (Mat. 003627)
Colaboradoras/es: ARQ. LUCÍA GARNICA / JONATAN CONIGLIO / MARTÍN GONZALEZ / VALENTINA TENTTI / LUCÍA BALMACEDA / ÁNGELA JIMÉNEZ / GUADALUPE CUEVAS
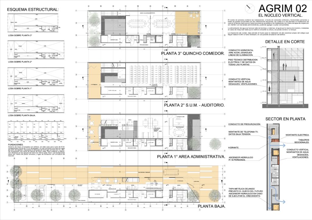
En relación al primer premio, el jurado rescató la armonía lograda entre todas las variables, con un resultado equilibrado entre exigencias de programa, inserción adecuada en el entorno, balance apropiado entre vacíos y llenos, con un generoso y flexible espacio de ingreso y transición entre objeto y ciudad.
A su vez, la terraza propuesta puede albergar a futuro crecimientos dada la buena ubicación del sistema vertical de vínculos y servicios.
Finalmente, se consideró acertada la resolución función/forma, que arroja excelentes resultados en la imagen final del complejo.
La Asesoría del Concurso estuvo a cargo de la Arq. Constanza SALDIAS -CAPBAUNO-, y el cuerpo de jurados integrado por el Arq. Eduardo Crivos votado por los participantes; los Arq. Horacio Morano y Ana Güimil por el CAPBAUNO; el Agrim. Diego Morrone por el Colegio de Agrimensores y Arq. Rodolfo Frolik por FADEA.
























